Available Apartment 1 room, ground floor at Gävlevägen 71B in Tierp

Lägenhet på 1 rum med kokvrå/pentry belagd i Tierp. Lägenheten ligger väldigt nära till både förskola, grundskola, och gymnasium. Man har också nära anslutning till E4:an för bekväm bilpendling, och ~1 km gång till både Centrum och Tågstation.

Lägenheten är ena delen av ett fristående parhus. Man har egen uteplats med balkongdörr med stort utrymme för utemöblering.

Gemensam tvättstugan med bokningstavla.

Apartment

5 300 SEK/mo (excl. utilities)

Gävlevägen 71B, 81536 Tierp

Landlord: WW Bostäder AB

Rooms
1 rok
Area
30 m²
Municipality
Tierp
✓ Laundry ✓ Pets OK

About this rental

Compact 30 kvm apartment at Gävlevägen 71B in Tierp. The monthly rent is 5 300 SEK.

The apartment includes laundry facilities. Pets are welcome.

More available apartments can be found in Tierp kommun. See all available rentals on Gävlevägen.

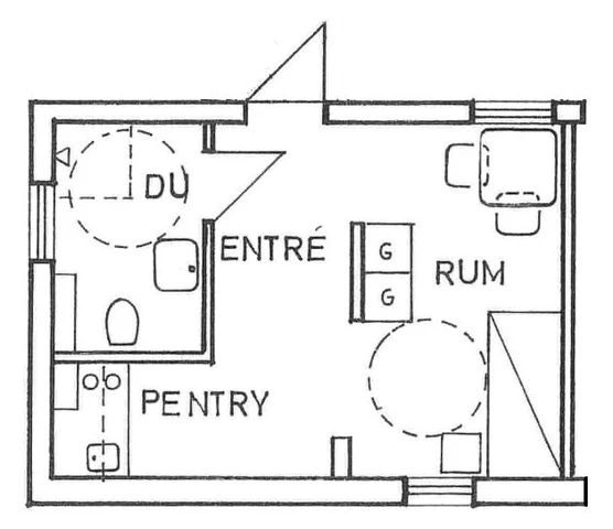
Floor Plan

Floor plan

Map

Apply at the landlord →

Source: ww-bostader • Last updated: Mar 31, 2026 • Landlord verified: May 25, 2026