Available Apartment 3 rooms, floor 3 at Brandkärrsvägen 118 B in Nyköping

Welcome to Brandkärrsvägen in Nyköping! We offer a unique opportunity to live close to shopping centers, schools, gyms, and public transport. The location is ideal for families, young people, seniors, and professionals. The apartment is fully renovated, spacious, features three rooms and a kitchen, and includes a new bathroom. There is an elevator in the building, storage units are provided, and the apartments feature balconies facing both north and south. Parking is available near the property.

Apartment

9 020 SEK/mo (incl. utilities)

Brandkärrsvägen 118 B, 61165 Nyköping

Landlord: HSB Södermanlands län

Rooms
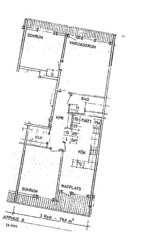
3 rok
Area
79 m²
Floor
3
Municipality
Nyköping
✓ Balcony ✓ Elevator ✓ Laundry ✓ Pets OK

About this rental

Rental apartment at Brandkärrsvägen 118 B in Nyköping with 3 rooms and 79 kvm living area. The monthly rent is 9 020 SEK.

The apartment is located in the Brandkärr district i Nyköping. The apartment is on floor 3.

The apartment includes a balcony, an elevator and laundry facilities. Pets are welcome.

More available apartments can be found in Brandkärr & Nyköping kommun. See all available rentals on Brandkärrsvägen.

Floor Plan

Floor plan

Map

Apply at the landlord →

Source: hsb-sodermanlands-lan • Last updated: Mar 28, 2026 • Landlord verified: May 4, 2026